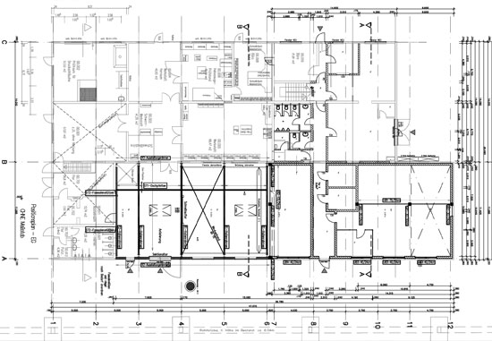
Erweiterung Werkstattgebäude
Eine 7 m hohe Stahlrahmenhalle mit Portalkrananlage. Umbauter Raum beträgt ca. 1.500 m³.
Daran angeschlossen bzw. integriert ist ein eingeschossiger ca. 4,0 m hoher Massivbau von ca. 1000 m³ umbautem Raum mit Flachdachausprägung zur späteren Aufstockung eines Bürogeschosses.



