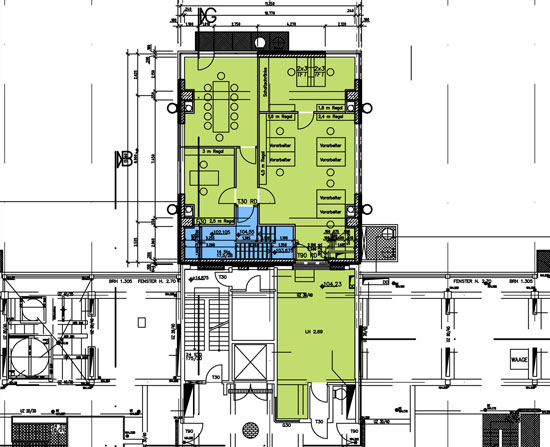
Sozialräume und Büros Synthese 1
Anbau an bestehendes Produktionsgebäude in zwei Bauabschnitten, Erschließung über Treppenhaus des Bestands, zusätzliche Treppe zum Ausgleich der Unterschiede durch unterschiedliche Geschosshöhen. Durchgehende F90-Trennung.
Realisierung in zwei Abschnitten: 1.-3.OG 1998, 4.-6.OG 2007







